
「家が整うと、暮らしが整う」とはよく言われることですが、整えるために効果的な「間取り」があるとしたら、気になりませんか?住まいを取材して20年の住宅・インテリアライターは、取材や誌面に掲載されたお宅の「間取り」がついつい気になってしまうそう。
その中から「これなら暮らしがスムーズに回る」と太鼓判を押せる間取りを厳選、ポイントについて解説してもらいます。
暮らしの基本となる「家」について考えるきっかけとなれば嬉しいです。引っ越しや新築&リフォームの参考にしてくださいね。
つい、間取りが気になります…
はじめまして。住宅&インテリアライターの志賀朝子と申します。これまで、住宅&インテリア雑誌を中心に、一戸建ての新築した方やマンションをリフォームした方などの取材を続けてきましたが、縁あって2018年から「サンキュ!」の誌面づくりにも参加させてもらっています。
「サンキュ!」の取材では、家事や収納のノウハウを伺うことが中心なため、取材先ではたくさんの刺激をもらえるのですが、住宅&インテリア畑が長かった私は、ついつい住まいのほうにも関心が向いてしまいます。
あれ?「サンキュ!」に登場するお宅って、住宅誌やインテリア誌に紹介したくなるくらい、工夫いっぱいの家が多いかも?

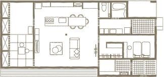
家事の負担を減らせる「ワンフロアの家」
福岡県で夫(35歳)、長女(9歳)、次女(7歳)、三女(4歳)の5人で暮らすいとうさん(35歳)。2年前に新築したマイホームは、ワンフロア(平屋)というのが特徴的です。
広い土地を確保しにくい地域の人からみると贅沢な選択とも言えますが、「せっかく建てるなら(法規の範囲内で)できるだけ広く」と考えるのが一般的ですよね。ワンフロアの家に憧れる人は意外に多く、「セカンドハウスや“終の棲家”は平屋に」という希望をよく耳にします。私自身は、以下のような暮らしやすさのメリットがあると思っています。
●地面が近いという安定感、安心感がある
●いつも家族の気配を感じられて、子どもに目が届きやすい
●上下移動がないぶん家事負担を軽減できる
●地震に強い場合が多く、屋外に避難もしやすい
●将来、夫婦2人の生活になったときに管理しやすい
ワンフロアの家、思った以上に魅力的に映りませんか?

スペースを有効に使える「廊下のない家」
また、いとうさん宅の間取り図を見ると、大小さまざまな四角いブロックをくっつけた、部屋と部屋が直接つながる「廊下のない家」であることに気がつきます。
移動のためだけに使われるスペースがないということは、限られた面積を居住空間のために有効活用できているということ(ワンフロアの家なので、上下階の移動のためだけに使われる階段スペースも不要!)。
さらに、洗面所が浴室と室内干しスペースへの移動経路を兼ねていたり、廊下となるスペースを寝室の中にとり込んでしまい、部屋の広さを損なわない形でウォークインクローゼットを設けたりと、とにかく無駄がないんです。
「廊下のない家」は、建築費をおさえる効果も高く、ワンフロアの家にも通じる「子どもに目が届きやすい」「家事動線を短縮できる」「体が不自由になったときに対策しやすい」というメリットも。
「ワンフロア」で「廊下がない」いとうさん宅は、まさに暮らしが整う家の代表といえます。実はこれ、マンションを大規模リフォームするときなどにとり入れられる考え方です。新築はもちろん、リフォームのときにも「廊下のない間取り」を検討してみてはいかがでしょうか?
Hava a try!
□自分の家の間取り図を眺めてみる
□住宅のチラシが入ってきたら、その間取りと暮らしを想像してみる
□理想の間取りを考えてみる
イラスト/長岡伸行
撮影/林ひろし
取材・文/志賀朝子
インテリア&住宅誌の編集部に19年在籍したのち、フリーランスのライターに。自分好みにリフォームした自宅で過ごすのが至福の時間のインドア派。趣味は自宅のインテリア&収納をあれこれ考えること、不動産のチラシチェック。家計管理や資産運用も大好きで、ファイナンシャルプランナー資格を取得。