部屋のような広さの「ファミリークローゼット」に注目!
住宅・インテリアライターの志賀朝子です。今回ご紹介するのは、大阪府のyukiさん(38歳)のお宅。夫(37歳)、長女(13歳)、二女(4歳)と暮らすyukiさんは整理収納アドバイザーの資格を持ち、2年前に建てたマイホームも収納のことがよ~く考えられています。
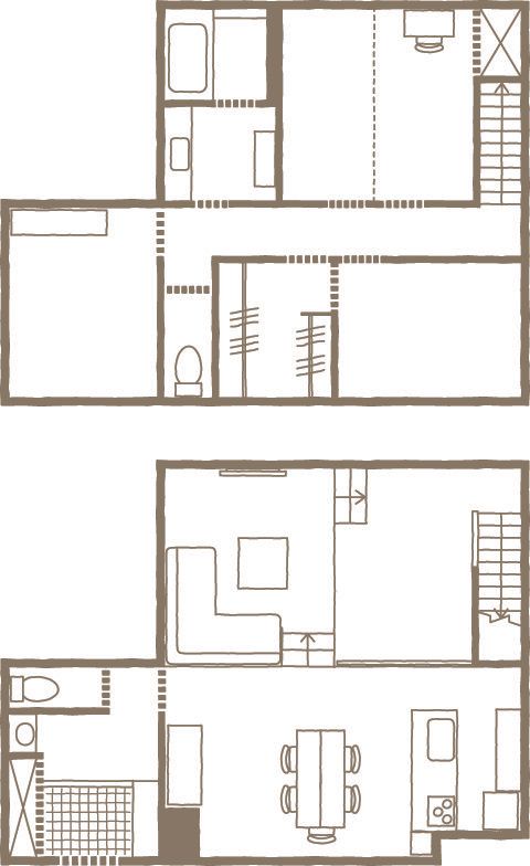
なかでも注目したいのは、2階に設けた「ファミリークローゼット」。それぞれの個室にクローゼットを設けるのではなく、クローゼットを独立した部屋のような形で設けているのが、下の間取り図(2階)からも分かりますよね。

納戸とクローゼットの「いいとこどり」
収納のための部屋…というと、もともと日本の住まいには「納戸」というものがあります。ファミリークローゼットとなにが違うの?という素朴な疑問がわきますが、納戸とクローゼットの「いいとこどり」をしたのがファミリークローゼットではないかと思っています。
ファミリークローゼットは、家族全員分の衣類をまとめて収納するのが目的です。内部にハンガー用のポールや棚を設置するのが一般的ですが、部屋のような広さにすることで、納戸のように扇風機や暖房器具、ひな人形やクリスマスツリー、旅行用のスーツケースなども収納できるというわけです。
家族の持ちものを一括管理できるのが大きなメリット

それぞれの個室に設ける通常のクローゼットとくらべて、家族の衣類を一か所にまとめて収納するファミリークローゼットにはどんなメリットがあるのでしょうか?考えられるメリットを以下にまとめてみました。
<ファミリークローゼットのメリット>
●子ども部屋や寝室がすっきり保てる
●洗濯ずみの衣類を一気に片づけられる
●家族の衣類を一括管理できる(クリーニングや処分する衣類の選別などが一度にできる)
●衣替えが不要
●“家族の目”にさらされることで、各自のエリアの整理整頓をうながせる(子どもはもちろん夫に対しても、カオスになる前に手が打てる)
●中学生&高校生の子どもの持ちものにさりげなく注意がはらえる(自分の服は自分で選びたい、買いたいと言い出したら)
●兄弟姉妹や母娘などで、ファッションアイテムの共有がしやすい
●“お下がり待ち”のもの、バザーに出す予定のものなど、すぐには使わない衣類の保管がしやすい
●急な来客時などに、散らかった荷物をとりあえず押し込んでおく”避難場所”にできる
●鏡を置いて、アクセサリーや帽子、バッグなどを見やすく並べれば、気分の上がるドレッシングルームに仕立てられる
●個室にクローゼットがないことで、個室の家具配置のバリエーションが広がる(yukiさんご本人に教えていただきました)
さらに「納戸のように扇風機や暖房器具、旅行用のスーツケースなどもしまっておける」も加えると、思った以上に「ファミリークローゼット」はメリットが多い気がしませんか?
住まいのどこに設けるか「場所」が重要
ただし、ファミリークローゼットを設ける場合に注意したいこともあります。特に重要なのは「場所」。朝の身支度、帰宅時や入浴時の着替え、洗濯ものをとり込んだあとの片づけ。この3つの場面で家族がどのように家の中を移動するかを想像して、行き来するのが負担にならない場所に設けることが大切です。
特に朝は、家族で着替えの時間がかぶらないような“運用ルール”をつくっておくといいかもしれません。
新居にファミリークローゼットをとり入れた私の妹が、「家族に内緒で高価な服やバッグを買いにくくなった」と言っていることも、お知らせしておきますね(笑)。

Have a try!
□家族の衣類の収納で不便に感じていることがないか考えてみる
□家族の衣類を一か所にまとめて収納したら、どんなメリットとデメリットがあるか考えてみる
イラスト/長岡伸行
撮影/林ひろし
取材・文/志賀朝子
インテリア&住宅誌の編集部に19年在籍したのち、フリーランスのライターに。自分好みにリフォームした自宅で過ごすのが至福の時間のインドア派。趣味は自宅のインテリア&収納をあれこれ考えること、不動産のチラシチェック。家計管理や資産運用にも関心があり、この春にファイナンシャルプランナー資格を取得。